RENTAL SPECIAL: Receive 50% Off Rent! 4 Months for Boulder Way & 2 Months for All Other Communities. View Available Units Valid for Move-Ins 12/1/2025 through 2/1/2026. Starts 30 days after move-in. Limited time offer. Subject to change.
Skip to content
(603) 627-8993Resident LoginApply Today

Search Units on Socha Website

Saddle Rock
Saddle Rock
  • Home
  • Floor Plans
  • Amenities
  • Photo Gallery
  • Community
  • Apply Now
  • Home
  • Floor Plans
  • Amenities
  • Photo Gallery
  • Community
  • Apply Now
  • Contact Us
  • Frequently Asked Questions
  • About Socha
  • Search Units
  • Our Communities

Albums Archive:

Newly-installed siding and windows on Saddle Rock Way end-unit, located in Manchester, New Hampshire
Patio of a 3 Bedroom Unit in the Saddle Rock Way, a high-end townhouse community by Socha Companies in Manchester NHManchester, NH residential townhouse community surrounded by fully bloomed trees and landscaped walkwaysNewly-installed siding and windows on Saddle Rock Way end-unit, located in Manchester, New Hampshire

Saddle Rock

homepageBy administratorAugust 12, 2025
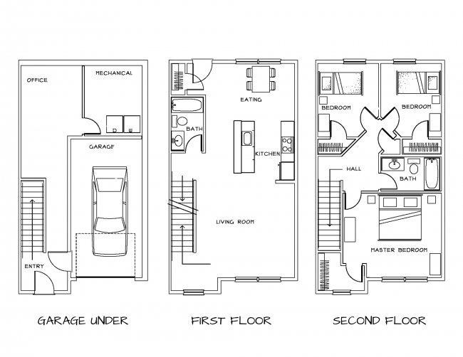
The Saddle Rock Way townhouse community offers three-bedroom, two full bathroom floor plans. This one shows a drive-under garage.
The Saddle Rock Way townhouse community offers three-bedroom, two full bathroom floor plans. This one shows an unfinished basement.The Saddle Rock Way townhouse community offers three-bedroom, two full bathroom floor plans. This one shows a drive-under garage.

Floor Plans

floor-plansBy administratorJuly 24, 2025
  • Home
  • Floor Plans
  • Amenities
  • Photo Gallery
  • Community
  • Apply Now
  • Contact Us
  • Frequently Asked Questions
  • About Socha
  • Search Units
  • Our Communities
Main menu

Copyright © 2025, Socha Companies


Website designed and managed by Just Flow Events & Marketing
Go to Top

Smoking Policy

Smoking is not permitted inside any Socha Companies building or unit. Our no smoking policy includes cigarettes, cigars, pipes, or other lighted smoking product as well as vaping and other unlighted tobacco products.